Циклон СДК-ЦН-33-3000 в Усть-Каменогорске

СДК ЦН 33 3000 1П циклон
Циклон СДК-ЦН-33-3000-1П
Чертеж циклона СДК-ЦН-33-3000-1П
Циклон СДК-ЦН-33-3000-1П чертеж
СДК ЦН 33 3000 1П циклон
Чертеж циклона СДК-ЦН-33-3000-1П
Цена
по запросу
От 0 ₸ с доставкой до г.
Логотип WhatsApp Связаться
по WhatsApp
Промышленный циклон СДК-ЦН-33-3000 для очистки воздуха от пыли и ее сбора на вредном производстве.

Технические характеристики

МаркаСДК-ЦН-33-3000
Тип циклонаЦиклон СДК-ЦН
ВидСДК-ЦН-33
Массовая концентрация пыли в очищаемом газе, не более: для слабослипающихся пылей1000 г/м³
Массовая концентрация пыли в очищаемом газе, не более: для среднеслипающихся пылей250 г/м³
Температура рабочей среды до400 °С
Коэффициент гидравлического сопротивления600
Внутренний диаметр корпуса циклона ЦН3000 мм
Количество циклонов в группе1 шт
Площадь сечения цилиндрической части корпуса (группы корпусов)7.07 м²
Скорость1.5-3.5 м/с
Рабочее сопротивление891-4851 Па
Камера очищенных газовНет
Вид пылесборного бункераПирамидальный
Количество пылесборных бункеров1 шт
Объем пылесборного бункера9.16 м³
Размер пылевыгрузного окна бункера500х500 мм
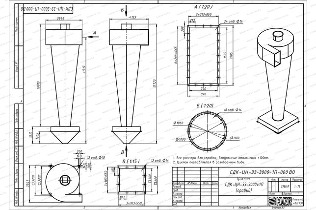
Размеры циклона ЦН (с учетом бункера): длина*ширина*высота3845х4123х12720 мм
Масса3987 кг
Производительность циклона38150-89020 м³/с

Промышленный циклон СДК-ЦН-33-3000 в Усть-Каменогорске

Котельный завод г Усть-Каменогорск производит огромный выбор циклонов СДК-ЦН-33-3000 для промышленной очистки воздуха от пыли и ее сбора на вредном производстве и в промышленных котельных. На сайте нашего котельного завода вы можете подобрать и купить циклон СДК ЦН 33 3000 по низкой цене. Менеджеры нашего завода дадут консультации по подбору оборудования и помогут в расчете производительности агрегата для вашего производства.

Назначение и сфера применения

Циклон СДК-ЦН-33-3000 предназначен для сухой очистки воздуха от сажегазовых и сажевоздушных смесей от твѐрдых частиц в системах пневмотранспорта, аспирации и пневмоуборки сажевого производства образующихся при различных технологических процессах. Высокая степень очистки и значительные габаритные размеры исключают их групповое исполнение и применение. Технические характеристики циклона пылеуловителя СДК ЦН 33 3000 позволяют применять их для очистки газовых смесей, в составе которых присутствуют частицы с высокими абразивными и слипающимися свойствами.

Сфера применения

  • производство технического углерода;
  • установка каталитического крекинга нефтепродуктов, дегидрирование бутана;
  • сажевое производство.

Технические характеристики циклона СДК-ЦН-33-3000

  • производительность по воздуху: 63600 м3/ч;
  • температура очищаемого газа: до 250℃;
  • размер пылевых частиц в загрязненном воздухе: не менее 5 мкм;
  • оптимальная скорость потока запыленного газа: 2,0 м/с.
D d d1 a L b hфл Нк Нц
3000 1000 1000 1605 1800 792 600 300 9000 1605

Устройство и описание

Циклон для пыли СДК ЦН 33 3000 конический, в верхней части которого находится небольшая цилиндрическая вставка с входным патрубком спиралевидной формы для направления входящего запыленного потока. В середине корпуса располагается вертикальная стальная труба для удаления очищенного воздуха. Нижняя коническая часть крепится к бункеру для сбора пыли, который снабжен шиберным или шлюзовым затвором с ручным или электрическим приводом. Конические агрегаты обеспечивают наибольшую эффективность пылеулавливания.

Аппараты изготавливаются как для правого, так и для левого вращения газового потока. Правым принято называть вращение газового потока в аппарате по часовой стрелке, если смотреть со стороны выхлопной трубы, левым — вращение против часовой стрелки.

Принцип работы

Пылевой поток поступает в образующую кольцевое пространство циклона для очистки воздуха СДК ЦН 33 3000 - цилиндрическую часть, где движется по спирали с возрастающей скоростью от периферии к центру, спускается по наружной спирали, затем поднимается по внутренней спирали и выходит через выхлопную трубу. Под действием центробежной силы частицы пыли отбрасываются к стенке аппарата и вместе с частью газа попадают в бункер. Часть освободившегося от пыли газа возвращается из бункера в агрегат через центр пылеотводящего отверстия, давая начало внутреннему вихрю.

Эксплуатация циклона СДК ЦН 33 3000

  1. На эффективность работы агрегатов существенное влияние оказывает режим работы аппарата. Для обеспечения наиболее высоких коэффициентов очистки воздуха режим работы должен быть стабильным, изменения в расходе воздуха не должно превышать 10-12%.
  2. Наиболее характерным нарушением нормальной работы циклонных установок является истирание стенок конуса абразивной пылью и налипание. С увеличением диаметра агрегата и понижением скорости воздушного потока на входе, истирание стенок и налипание пыли уменьшается.
  3. Количество воздушного потока, который поступает на входе, должно находиться в пределах, предусмотренных для данного аппарата.
  4. При уменьшении количества воздуха снижается скорость его движения, что приводит к снижению коэффициента очистки.
  5. При значительном увеличении количества воздуха возникает гидравлическое сопротивление, что может привести к уменьшению коэффициента очистки.

Эффективность очистки пылеуловителем обеспечивается выполнением следующих мероприятий:

  • осмотр и ремонт циклонного пылеуловителя СДК ЦН 33 3000 производятся регулярно, согласно производственным условиям;
  • отсутствуют подсосы воздуха в элементы аппарата;
  • запорно-разгрузочный шибер сборного бункера герметичен;
  • бункер пылеуловителя регулярно очищается;
  • при остановке агрегата полностью опорожняется сборный бункер, для исключения увлажнения уловленной пыли и образования завалов и пробок в тракте;
  • скорости движения очищаемого потока в пылеуловителе для абразивной среды 2-2.5 м/с, для не абразивной среды 2-6 м/с.

Подбор пылеуловителя

Подбор необходимой модели осуществляется исходя из производительности, размеров очищаемого помещения, типа и выделяемого объема загрязнений.

Купить циклон СДК-ЦН-33-3000

Для того, что бы купить циклон СДК-ЦН-33-3000 в Усть-Каменогорске вы можете сделать заявку по телефону +7-7172-69-59-73, либо оформить заявку онлайн. Менеджеры дадут консультацию по подбору вспомогательного оборудования для выбранных вами моделей и рассчитают стоимость доставки. Транспортирование котлоагрегата и вспомогательного оборудования до объекта осуществляется автомобильным транспортом.

Дополнительно потребуется

Мигалка затвор
Цена 105 440 тг.

Опросные листы

Все опросные листы
Опросный лист на циклоны
Заполнить опрос
Опросный лист на опоры циклона
Заполнить опрос

Собственное производство

Котельный завод производит
  • Паровые котлы от 300 кг до 2.5 тонны пара в час
  • Промышленные водогрейные котлы от 150 КВт до 4 МВт на всех видах топлива
  • Механические топки ТШПМ, шурующая планка и ТЛПХ, ленточное полотно прямого хода
  • Циклоны для очистки воздуха и дымовых газов для производств и промышленных отраслей
  • Транспортеры и системы топливоподачи и шлакоудаления
Подробнее о производстве
Собственное производство
Смотреть видео
с производства